Centar za humanu politiku upozorio je Vladu Republike Srpske da informacija o potrebi izrade novog idejnog rješenja zaštite od poplava na području Doboja, koju su zajednički pokrenuli Grad Doboj i resorno ministarstvo, predstavlja pokušaj da se ponovo finansira posao koji je već završen i plaćen prije deset godina.





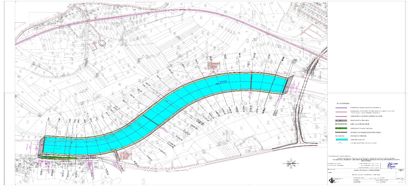
Prema navodima ove organizacije, master plan zaštite od poplava i sektorski projekti za područje Doboja izrađeni su i plaćeni još 2014. i 2015. godine, neposredno nakon katastrofalnih poplava koje su pogodile grad. Podsjećaju da je već 2016. godine donesena i odluka o utvrđivanju opšteg interesa za eksproprijaciju zemljišta potrebnog za realizaciju sistema zaštite od poplava, ali da taj proces do danas nije završen.





U Centru tvrde da se u novoj informaciji prećutkuje postojanje ranije urađene dokumentacije, te upozoravaju da se na taj način pokušava otvoriti prostor za novi posao procijenjen na 2.340.000 KM sa PDV-om, iako za to, kako navode, nema stručnog ni pravnog opravdanja.
Grad Doboj je u septembru prošle godine zatražio od Ministarstva poljoprivrede, šumarstva i vodoprivrede Republike Srpske pomoć u finansiranju izrade idejnog rješenja zaštite od poplava rijeke Bosne i pritoka Spreče i Usore na širem području urbane cjeline grada. Procijenjena vrijednost tog posla iznosi 2.000.000 KM bez PDV-a, odnosno 2.340.000 KM sa PDV-om.
Zahtjev je potom proslijeđen Javnoj ustanovi „Vode Srpske“, koja je podržala inicijativu, ali navela da u sopstvenom budžetu nema planirana sredstva za ovu vrstu radova, te predložila da sredstva obezbijedi Vlada Republike Srpske.
Centar za humanu politiku smatra da se time pokušava rješavati problem koji je već stručno obrađen odmah nakon poplava 2014. godine, dok se istovremeno godinama odgađa realizacija postojećih sektorskih projekata. Posebno ukazuju da Grad Doboj i dalje nije završio eksproprijaciju zemljišta predviđenog za izgradnju zaštitnih nasipa i regulaciju riječnog korita.
Iz ove organizacije tvrde da gradska vlast godinama opstruiše realizaciju projekta zaštite od poplava kako bi se dio prostora velikog korita rijeke Bosne pretvorio u građevinsko zemljište.
Zbog toga su od Vlade Republike Srpske zatražili da odbaci predloženu informaciju, obaveže nadležne institucije da u roku od godinu dana završe eksproprijaciju zemljišta, te da „Vode Srpske“ u naredne tri godine realizuju već postojeće projekte zaštite Doboja od poplava.
Predsjednik Centra za humanu politiku Momir Dejanović poručio je da bi svako novo finansiranje iste dokumentacije predstavljalo direktan trošak za budžet bez stvarnog pomaka u zaštiti grada od budućih poplava.
***
Pratite nas na našoj Facebook i Instagram stranici i X nalogu.
Čitaoci reporteri
Podjelite sa ostalim našim čitaocima ono što svakodnevno vidite, sa čime se susrećete, vaše utiske sa putovanja, neobične sutuacije kojima ste prisustvovali i zabilježili ih svojim foto-aparatom tokom ljetovanja, zimovanja, izleta... Pišite nam na našu email adresu:

